Gambar Pondasi Rumah – Dalam dunia konstruksi bangunan, pondasi adalah elemen yang tak terlihat namun memiliki peran yang sangat penting dalam menjaga stabilitas dan kekuatan sebuah struktur.
Pondasi berfungsi sebagai penopang beban bangunan dan mengalirkan beban tersebut ke lapisan tanah yang lebih dalam. Bagian penting dari perencanaan dan konstruksi pondasi adalah penggunaan gambar pondasi rumah yang akurat.
Dalam artikel ini, kita akan menjelajahi pentingnya gambar pondasi rumah dalam konstruksi bangunan dan mengapa memiliki gambar pondasi yang baik dapat menguntungkan proyek konstruksi Anda.
Pentingnya Gambar Pondasi Rumah dalam Konstruksi Bangunan
Pentingnya Gambar Pondasi Rumah
- Panduan Konstruksi yang Jelas
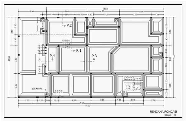
Gambar pondasi rumah memberikan panduan konstruksi yang jelas kepada para pekerja di lapangan. Dalam dunia konstruksi, gambar adalah bahasa universal yang memungkinkan komunikasi yang tepat antara arsitek, insinyur, dan pekerja lapangan.
Dengan gambar yang rinci dan akurat, para pekerja dapat memahami dengan jelas bagaimana pondasi harus dibangun, termasuk ukuran, dimensi, dan lokasi elemen-elemen penting.
- Mencegah Kesalahan Konstruksi
Kesalahan dalam konstruksi pondasi dapat memiliki konsekuensi yang serius, seperti retaknya struktur atau penurunan yang tidak merata. Gambar pondasi yang tepat dapat membantu mencegah terjadinya kesalahan-kesalahan ini.
Para pekerja dapat mengacu pada gambar-gambar tersebut untuk memastikan bahwa pondasi dibangun sesuai dengan perencanaan awal.
- Penggunaan Bahan yang Tepat
Gambar pondasi rumah juga mencakup spesifikasi bahan yang harus digunakan dalam konstruksi. Ini termasuk jenis beton, baja, dan bahan lainnya yang diperlukan untuk membangun pondasi yang kokoh dan tahan lama.
Dengan mengikuti spesifikasi bahan yang ada dalam gambar, Anda dapat memastikan bahwa pondasi dibangun dengan kualitas terbaik.
- Efisiensi Waktu dan Biaya
Gambar pondasi yang baik dapat membantu meningkatkan efisiensi waktu dan biaya dalam proyek konstruksi. Para pekerja dapat bekerja dengan lebih efisien karena memiliki panduan yang jelas, mengurangi kemungkinan revisi atau perubahan yang mahal.
Selain itu, kesalahan konstruksi yang dapat menghabiskan waktu dan biaya tambahan dapat dicegah dengan bantuan gambar yang akurat.
Langkah-Langkah dalam Membuat Gambar Pondasi Rumah yang Baik
Membuat gambar pondasi rumah yang baik memerlukan perhatian terhadap detail dan pemahaman mendalam tentang perencanaan konstruksi. Berikut adalah langkah-langkah umum yang dapat Anda ikuti:
- Kolaborasi dengan Ahli
Kolaborasi dengan ahli arsitektur dan insinyur sipil adalah langkah penting dalam pembuatan gambar pondasi rumah. Ahli-ahli ini dapat membantu Anda merancang pondasi yang sesuai dengan karakteristik tanah, beban bangunan, dan standar keselamatan.
- Evaluasi Lokasi
Periksa kondisi tanah dan lingkungan di lokasi proyek. Ini mencakup penilaian daya dukung tanah, pergerakan tanah, dan faktor-faktor lain yang dapat memengaruhi desain pondasi.
- Pemilihan Jenis Pondasi
Berdasarkan hasil evaluasi, tentukan jenis pondasi yang paling sesuai. Ini dapat berupa pondasi strip, pondasi tiang pancang, atau pondasi batu kali tergantung pada kondisi tanah dan beban bangunan.
- Buat Gambar Sketsa Awal
Buat sketsa awal gambar pondasi yang mencakup dimensi umum, letak tiang pancang (jika ada), dan elemen penting lainnya.
- Gunakan Perangkat Lunak Desain
Gunakan perangkat lunak desain arsitektur atau teknik sipil untuk membuat gambar pondasi yang lebih rinci dan akurat. Pastikan gambar mencakup detail seperti dimensi, jarak antara tiang pancang, dan spesifikasi bahan.
- Konsultasi dengan Ahli Lagi
Setelah gambar selesai, konsultasikan kembali dengan ahli untuk memastikan bahwa desain dan detail yang ada sudah sesuai dengan standar dan peraturan yang berlaku.
- Bagikan Gambar dengan Tim Konstruksi
Bagikan gambar pondasi kepada tim konstruksi yang akan mengerjakan proyek. Pastikan semua anggota tim memahami gambar dengan baik sebelum memulai konstruksi.
Dalam proyek konstruksi, gambar pondasi rumah adalah panduan yang tidak bisa diabaikan. Gambar-gambar ini memiliki peran penting dalam memastikan pondasi yang kokoh dan tahan lama.
Dengan mengikuti langkah-langkah yang tepat dalam pembuatan gambar pondasi, Anda dapat memastikan bahwa konstruksi berjalan dengan lancar, efisien, dan sesuai dengan perencanaan.
Jangan ragu untuk berkolaborasi dengan ahli dalam proses ini untuk memastikan hasil yang optimal dan memenuhi standar keselamatan yang berlaku.
Pondasi Rumah: Dasar Kokoh bagi Bangunan Impian Anda
Pernahkah Anda membayangkan jika rumah adalah seperti tubuh manusia? Jika ya, maka pondasi adalah tulang belakang yang menjaga segala sesuatunya tetap berdiri dengan kokoh.
Meskipun pondasi seringkali tersembunyi di balik dinding-dinding yang indah, pentingnya pondasi rumah tidak dapat diabaikan.
Artikel ini akan membahas segala hal yang perlu Anda ketahui tentang pondasi rumah, dari jenis-jenisnya hingga pentingnya peranannya dalam memastikan rumah Anda berdiri dengan stabil dan aman.
Jenis-Jenis Pondasi Rumah
- Pondasi Batu Kali
Pondasi batu kali adalah salah satu jenis pondasi tradisional yang masih banyak digunakan hingga saat ini. Dengan menggunakan batu-batu besar yang disusun secara cermat, pondasi ini memberikan kestabilan yang kuat bagi bangunan.
Kelebihan pondasi batu kali meliputi daya tahan yang tinggi terhadap beban berat dan kemampuan meredam getaran gempa.
- Pondasi Cakar Ayam
Pondasi cakar ayam dikenal karena bentuknya yang mirip dengan cakar ayam. Bentuk ini memberikan daya tahan ekstra terhadap tekanan tanah dan beban bangunan. Pondasi ini cocok untuk tanah yang lunak atau cenderung ambles.
- Pondasi Tiang Pancang
Pondasi tiang pancang umumnya digunakan di daerah dengan tanah lunak atau berlumpur. Tiang pancang yang ditanamkan ke dalam tanah hingga mencapai lapisan yang lebih keras memberikan kestabilan tambahan.
- Pondasi Sloof
Pondasi sloof adalah balok beton yang menghubungkan pondasi utama dengan dinding bangunan. Ini membantu mendistribusikan beban secara merata dan mencegah retakan pada dinding.
Pentingnya Pondasi Rumah
Pondasi rumah bukan hanya tentang memastikan bangunan berdiri tegak, tetapi juga tentang keamanan dan kenyamanan penghuni. Pondasi yang kokoh dapat mencegah kerusakan struktural akibat pergeseran tanah atau getaran gempa. Ini juga dapat mengurangi risiko retakan pada dinding dan lantai.
Selain itu, pondasi yang tepat juga berdampak pada efisiensi energi. Bangunan dengan pondasi yang baik memiliki isolasi yang lebih baik, membantu menjaga suhu di dalam rumah tetap nyaman tanpa harus bergantung pada pendingin atau pemanas udara secara berlebihan.
Tips Memilih Pondasi yang Tepat
Konsultasikan dengan Ahli: Sebelum memilih jenis pondasi, konsultasikan dengan seorang arsitek atau insinyur sipil yang berpengalaman. Mereka dapat membantu Anda menentukan jenis pondasi yang paling sesuai dengan kondisi tanah dan desain bangunan.
Perhatikan Tanah: Jenis tanah di lokasi bangunan sangat mempengaruhi jenis pondasi yang tepat. Tanah liat, pasir, atau tanah berlumpur memerlukan jenis pondasi yang berbeda.
Budget dan Waktu: Pertimbangkan juga faktor anggaran dan waktu. Beberapa jenis pondasi mungkin memerlukan biaya dan waktu lebih banyak untuk pengerjaannya.
Pondasi rumah adalah fondasi harapan Anda untuk membangun rumah impian yang kokoh dan nyaman. Pemilihan jenis pondasi yang tepat sangat penting untuk memastikan stabilitas dan keamanan bangunan Anda.
Konsultasikan dengan para ahli untuk membuat keputusan yang bijaksana, dan ingatlah bahwa investasi pada pondasi adalah investasi jangka panjang bagi rumah Anda.
Dengan memahami jenis-jenis pondasi dan pentingnya peranannya, Anda dapat memastikan bahwa rumah Anda akan berdiri tegak dan kokoh dalam berbagai situasi.





















