Pondasi Bangunan 4 Lantai – Halo pembaca, apa kabar kalian? Selamat datang di artikel kami tentang pondasi 4 lantai. Kami sangat senang bisa berbagi informasi dengan kalian mengenai topik yang menarik ini.
Pondasi adalah salah satu elemen kunci dalam membangun struktur yang kokoh dan tahan lama. Jadi, mari kita mulai perjalanan kita dalam mempelajari segala hal tentang pondasi 4 lantai.
Pondasi Bangunan 4 Lantai
Jenis-Jenis Pondasi Bangunan
Pada bangunan, pondasi memiliki peran yang sangat penting dalam menopang beban struktur di atasnya. Ada beberapa jenis pondasi yang umum digunakan dalam bangunan. Pertama adalah pondasi dangkal, yang biasanya digunakan untuk bangunan dengan beban ringan seperti rumah tinggal.
Pondasi ini dibuat dengan menggali lubang dangkal di tanah dan kemudian mengisi dengan beton. Jenis pondasi lainnya adalah pondasi dalam, yang digunakan untuk bangunan dengan beban yang lebih berat seperti gedung bertingkat.
Pondasi dalam ini melibatkan penggalian yang lebih dalam dan penggunaan tiang pancang atau pil. Selanjutnya, ada juga pondasi kombinasi, yang menggabungkan pondasi dangkal dan dalam untuk mengoptimalkan kestabilan bangunan.
Pemilihan jenis pondasi ini harus disesuaikan dengan kondisi tanah dan beban bangunan yang akan didukung. Dengan pemilihan dan penerapan jenis pondasi yang tepat, bangunan dapat dirancang untuk menjadi kokoh dan aman.
Pertimbangan Dalam Memilih Pondasi Bangunan Untuk Bangunan 4 Lantai
Pada saat memilih pondasi bangunan untuk bangunan 4 lantai, terdapat beberapa pertimbangan yang perlu diperhatikan dengan cermat. Pertama, jenis tanah yang akan menjadi dasar pondasi harus diketahui dengan pasti.
Tanah yang stabil dan kuat seperti tanah liat atau batuan akan membutuhkan pondasi yang berbeda dibandingkan dengan tanah yang lunak atau berpasir. Selanjutnya, beban yang akan diterima oleh pondasi juga harus dipertimbangkan.
Bangunan 4 lantai akan memiliki beban yang lebih besar dibandingkan dengan bangunan yang lebih rendah. Oleh karena itu, pondasi harus mampu menopang beban yang akan ditanggung dengan aman dan stabil.
Pertimbangan lainnya adalah kedalaman pondasi. Untuk bangunan 4 lantai, pondasi biasanya memerlukan kedalaman yang lebih dalam agar dapat menjangkau tanah yang lebih stabil dan menghindari masalah pergeseran tanah.
Selain itu, faktor lingkungan seperti cuaca dan keberadaan air tanah juga harus dipertimbangkan. Cuaca yang ekstrem atau air tanah yang tinggi dapat mempengaruhi stabilitas pondasi.
Dalam memilih pondasi bangunan untuk bangunan 4 lantai, penting untuk berkonsultasi dengan ahli struktur atau insinyur sipil guna memastikan bahwa pondasi yang dipilih memenuhi standar keamanan dan kebutuhan bangunan tersebut.
Perencanaan Pondasi Bangunan 4 Lantai
Konsepnya didasarkan pada akar pohon raksasa yang kuat dan kokoh yang menembus tanah. Pondasi ini didesain dengan menggunakan material inovatif yang menggabungkan beton dengan serat-serat organik yang ditemukan di hutan terlarang.
Serat-serat itu memberikan kekuatan ekstra pada pondasi, sehingga mampu menahan beban dan goncangan bangunan dengan sempurna. Selain itu, pondasi ini juga dilengkapi dengan teknologi canggih yang memungkinkan pengaturan otomatis ketika terjadi perubahan suhu dan kelembaban tanah.
Dengan demikian, pondasi ini dapat mengimbangi perubahan kondisi lingkungan sekitar dan menjaga stabilitas bangunan. Perencanaan ini memadukan keindahan alam dengan kekuatan struktural, menciptakan fondasi yang unik dan tak tergoyahkan untuk bangunan 4 lantai ini.
Studi Tanah Dan Analisis Tanah
Studi Tanah dan Analisis Tanah merupakan dua aspek penting dalam bidang pertanian dan lingkungan. Melalui studi tanah, kita dapat memahami kondisi tanah secara mendalam, termasuk kandungan nutrisi, keasaman, dan tekstur tanah.
Sedangkan analisis tanah membantu kita mengetahui kebutuhan tanaman dalam hal pemupukan dan pengelolaan lahan yang efektif. Dalam studi tanah, para ahli menggunakan metode dan alat khusus untuk mengumpulkan data dan mengidentifikasi karakteristik tanah.
Mereka menganalisis sampel tanah dari berbagai daerah untuk menentukan tingkat kesuburan dan kelayakan untuk pertanian. Dengan pemahaman yang mendalam tentang tanah, petani dapat memilih varietas tanaman yang tepat dan mengoptimalkan penggunaan pupuk dan air.
Analisis tanah juga penting dalam pengelolaan lingkungan. Dengan mengetahui komposisi tanah di suatu area, kita dapat mengidentifikasi risiko erosi, pencemaran air tanah, dan kerusakan lingkungan lainnya.
Dengan demikian, kita dapat mengambil tindakan yang tepat untuk melindungi dan melestarikan sumber daya alam yang berharga. Dalam kesimpulan, studi tanah dan analisis tanah merupakan bagian integral dalam pengelolaan pertanian dan lingkungan.
Melalui penelitian dan pemahaman yang mendalam tentang tanah, kita dapat mengoptimalkan produksi pertanian dan melindungi lingkungan secara berkelanjutan.
Beban Yang Diberikan Pada Pondasi Bangunan 4 Lantai
Pondasi merupakan salah satu elemen penting dalam sebuah bangunan, terutama saat membangun gedung bertingkat seperti bangunan 4 lantai. Beban yang diberikan pada pondasi 4 lantai sangatlah signifikan, mengingat pondasi bertugas menahan beban vertikal dan mendistribusikannya ke tanah di bawahnya.
Beban yang diberikan pada pondasi 4 lantai terdiri dari dua jenis beban utama, yaitu beban mati dan beban hidup. Beban mati adalah beban yang dihasilkan oleh berat sendiri dari struktur bangunan dan elemen-elemennya seperti dinding, lantai, dan atap.
Sedangkan beban hidup adalah beban yang dihasilkan oleh aktivitas manusia, seperti orang-orang yang berada di dalam bangunan, per
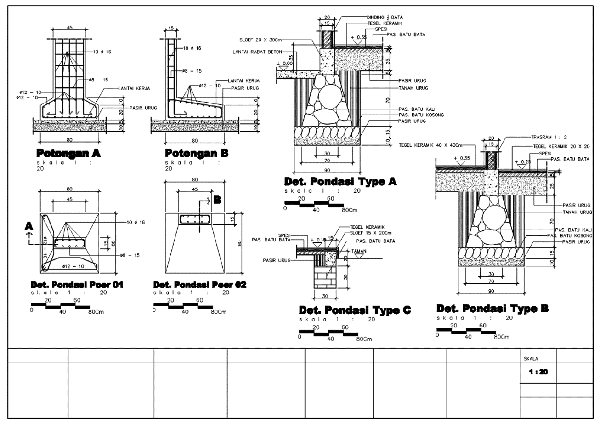
Dimensi Dan Detail Konstruksi Pondasi Bangunan 4 Lantai
Pada pembangunan bangunan 4 lantai, dimensi dan detail konstruksi pondasi sangatlah penting. Pondasi yang kuat dan kokoh akan menjaga stabilitas bangunan agar tidak terjadi kerusakan atau kegagalan struktur.
Dimensi pondasi harus disesuaikan dengan beban vertikal dan lateral yang akan dihadapi oleh bangunan. Selain itu, juga perlu mempertimbangkan jenis tanah di lokasi tersebut. Detail konstruksi pondasi meliputi pilihan bahan, metode pelaksanaan, dan penggunaan peralatan yang tepat.
Semua ini harus dilakukan dengan hati-hati dan sesuai dengan standar konstruksi yang berlaku. Dengan memperhatikan dimensi dan detail konstruksi pondasi, bangunan 4 lantai akan memiliki kekuatan yang cukup untuk menahan beban dan mampu memberikan keamanan serta kenyamanan bagi penghuninya.
Pemilihan Bahan Untuk Pondasi Bangunan 4 Lantai
Di dalam pemilihan bahan untuk pondasi 4 lantai, ada beberapa faktor penting yang perlu dipertimbangkan. Pertama, ketangguhan dan kekuatan material harus menjadi prioritas utama. Beton bertulang adalah pilihan yang umum karena daya tahan dan keKamulannya.
Namun, ada juga alternatif yang menarik seperti pondasi baja yang ringan namun kokoh. Selain itu, bahan pondasi harus mampu menahan beban bangunan dengan baik. Batu bata atau batu kali dapat digunakan sebagai pilihan yang solid dan terjangkau.
Namun, jika ingin memastikan ketahanan yang lebih tinggi, beton pracetak dengan serat baja dapat menjadi solusi yang ideal. Tidak hanya itu, kestabilan tanah juga perlu dipertimbangkan. Jika tanah
Metode Pelaksanaan Pondasi Bangunan 4 Lantai
Metode pelaksanaan pondasi bangunan 4 lantai merupakan langkah penting dalam memastikan kestabilan dan keamanan struktur tersebut. Dalam proses ini, pertama-tama dilakukan studi tanah untuk menentukan jenis dan kekuatan tanah di lokasi.
Setelah itu, dilakukan perencanaan pondasi yang sesuai dengan karakteristik tanah tersebut. Pada tahap konstruksi, langkah pertama adalah pembersihan dan perataan area yang akan menjadi pondasi. Kemudian, dilakukan penggalian untuk mencapai kedalaman yang sesuai dengan desain pondasi.
Setelah itu, dilakukan pengecoran pondasi dengan menggunakan bahan yang kuat dan tahan terhadap beban struktural. Selanjutnya, dilakukan pemasangan tulangan baja yang bertujuan untuk memperkuat kekuatan pondasi.
Tulangan baja ini diatur sesuai dengan desain struktur bangunan dan diletakkan dengan jarak yang tepat agar dapat menahan beban bangunan dengan baik. Setelah semua tahap tersebut selesai, dilakukan pengujian dan pengawasan untuk memastikan bahwa pondasi telah memenuhi standar keamanan yang diperlukan.
Hal ini meliputi pengujian kekuatan tanah, pengujian kekuatan beton, serta pengujian struktur pondasi secara keseluruhan. Dengan mengikuti metode pelaksanaan pondasi yang tepat, bangunan 4 lantai dapat dibangun dengan kestabilan dan keamanan yang terjamin.
Penting untuk selalu memperhatikan aspek teknis dan kualitas bahan dalam proses ini guna memastikan bahwa pondasi dapat bertahan dalam jangka waktu yang lama.
Dalam artikel ini, kita telah membahas pentingnya pondasi dalam membangun bangunan 4 lantai. Pondasi yang kuat adalah kunci keberhasilan dalam memastikan kestabilan dan keamanan struktur bangunan.
Dengan memahami jenis-jenis pondasi yang sesuai dan langkah-langkah dalam pembangunannya, kita dapat memastikan bahwa bangunan yang kita konstruksikan akan berdiri kokoh dan aman.
Semoga artikel ini bermanfaat bagi Kamu yang tertarik dalam dunia konstruksi. Sampai jumpa dalam artikel menarik lainnya! Jangan lupa untuk membagikan artikel ini kepada teman-teman Kamu. Terima kasih.
Rizan Aji Anggara adalah seorang arsitek yang bekerja di Dinaka Struktur, sebuah firma yang dikenal dalam bidang desain struktur bangunan. Di Dinaka Struktur, Rizan berperan penting dalam memastikan setiap proyek memenuhi standar keselamatan dan kualitas yang tinggi



