Struktur Gedung 4 Lantai – Gedung-gedung 4 lantai adalah manifestasi keahlian arsitektur modern. Mereka mencerminkan perkembangan teknologi konstruksi, desain inovatif, dan tuntutan akan ruang yang lebih besar dan lebih fungsional.
Dalam artikel ini, kita akan menjelajahi struktur gedung 4 lantai, membongkar rahasia di balik fondasi mereka, dan mengungkap keindahan arsitektur yang menjadikan mereka ikon di perkotaan yang berkembang.
Struktur Gedung 4 Lantai: Fondasi Kemajuan Arsitektur Modern
Mengapa Gedung 4 Lantai?
Gedung-gedung 4 lantai adalah pilihan yang menarik untuk sejumlah alasan yang meliputi:
Efisiensi Ruang: Dengan 4 lantai, gedung ini dapat menyediakan lebih banyak ruang dalam footprint yang relatif kecil. Ini memungkinkan pemanfaatan lahan yang lebih efisien di daerah perkotaan yang padat.
Fleksibilitas Fungsional: Lantai tambahan memberikan lebih banyak fleksibilitas dalam merencanakan fungsi bangunan. Mereka dapat digunakan untuk tempat tinggal, perkantoran, atau bahkan gabungan keduanya.
Estetika Modern: Gedung-gedung 4 lantai seringkali mencerminkan estetika modern dalam arsitektur. Mereka memiliki tampilan yang minimalis dan kontemporer yang menarik.
Keseimbangan antara Ketinggian dan Akses: Dalam gedung 4 lantai, akses ke lantai-lantai tersebut lebih mudah dibandingkan dengan gedung pencakar langit yang jauh lebih tinggi. Ini memungkinkan penggunaan yang lebih efisien.
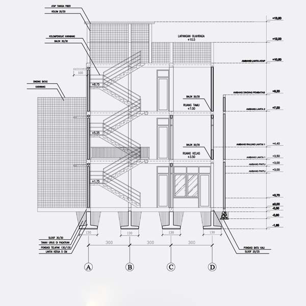
Fondasi yang Kuat
Fondasi adalah elemen kunci dalam struktur gedung 4 lantai. Fondasi yang kuat dan stabil adalah dasar yang diperlukan untuk memastikan keselamatan bangunan dan penghuninya. Beberapa jenis fondasi yang umum digunakan dalam gedung-gedung 4 lantai termasuk:
- Fondasi Cakar Ayam (Pile Foundation)
Fondasi cakar ayam adalah jenis fondasi dalam yang digunakan ketika tanah di bawah bangunan memiliki daya dukung yang rendah. Ini melibatkan pengeboran cakar atau tiang baja ke dalam tanah hingga mencapai lapisan tanah yang lebih kuat. Cakar atau tiang ini kemudian menjadi penyangga utama bangunan.
- Fondasi Balok (Raft Foundation)
Fondasi balok adalah fondasi datar yang mencakup seluruh area bangunan. Ini cocok untuk tanah yang memiliki daya dukung yang baik. Fondasi balok terdiri dari beton bertulang yang ditempatkan di bawah seluruh gedung. Ini mendistribusikan berat bangunan secara merata ke tanah di bawahnya.
- Fondasi Tiang Pancang (Pile and Beam Foundation)
Fondasi ini adalah kombinasi antara fondasi cakar ayam dan fondasi balok. Tiang pancang digunakan untuk mengatasi tanah yang lemah, sementara balok di atasnya mendistribusikan beban bangunan.
Desain Arsitektur yang Menarik
Gedung-gedung 4 lantai seringkali mencerminkan inovasi dalam desain arsitektur. Beberapa konsep desain yang umum digunakan dalam bangunan ini meliputi:
- Fasad Modern
Fasad bangunan adalah tampilan luar yang pertama kali dilihat oleh orang-orang. Fasad modern seringkali mencakup penggunaan material seperti kaca, aluminium, dan baja tahan karat. Desain fasad yang bersih dan minimalis menciptakan tampilan yang menawan.
- Penggunaan Kaca yang Luas
Jendela kaca yang besar adalah ciri khas dalam gedung-gedung 4 lantai. Mereka memberikan akses cahaya alami yang cukup ke dalam bangunan, menciptakan tampilan yang terang dan luas.
- Efisiensi Energi
Desain gedung 4 lantai sering mencakup elemen-elemen efisiensi energi seperti panel surya, isolasi yang baik, dan sistem pencahayaan hemat energi. Ini membantu mengurangi dampak lingkungan dan biaya operasional.
- Fleksibilitas Ruang
Desain interior dalam gedung 4 lantai seringkali mengutamakan fleksibilitas ruang. Dinding yang dapat dipindahkan, lantai yang modular, dan desain yang modular memungkinkan penggunaan yang beragam dari ruang dalam bangunan.
- Ruang Terbuka
Ruang terbuka dalam gedung 4 lantai sering mencakup taman atap, balkon, atau teras. Ini memberikan penghuni ruang luar yang nyaman dan akses ke pemandangan yang menakjubkan.
Perencanaan yang Matang
Membangun gedung 4 lantai memerlukan perencanaan yang matang. Berikut adalah beberapa langkah yang perlu diambil dalam proses ini:
- Penentuan Tujuan Penggunaan Gedung
Langkah pertama adalah menentukan tujuan penggunaan gedung. Apakah ini akan digunakan sebagai tempat tinggal, perkantoran, atau gabungan keduanya?
- Kajian Lokasi
Pilih lokasi yang sesuai dengan kebutuhan Anda. Pertimbangkan faktor-faktor seperti aksesibilitas, lingkungan sekitar, dan pemandangan.
- Perizinan dan Regulasi
Pastikan Anda memahami perizinan dan regulasi yang berlaku dalam wilayah Anda. Ini meliputi peraturan zonasi, tata letak bangunan, dan persyaratan lingkungan.
- Kerja Sama dengan Profesional
Kerja sama dengan arsitek, insinyur struktural, dan kontraktor profesional yang berpengalaman adalah langkah yang bijak. Mereka dapat membantu Anda merencanakan, merancang, dan membangun gedung dengan baik.
- Rencana Bangunan dan Desain Interior
Rencanakan bangunan dan desain interior dengan cermat. Ini mencakup penentuan tata letak lantai, pemilihan material, dan pemilihan teknologi efisiensi energi.
- Perhitungan Biaya dan Anggaran
Tentukan anggaran yang realistis dan perhitungkan semua biaya yang terkait dengan pembangunan gedung, termasuk biaya konstruksi, pemeliharaan, dan operasi.
- Pelaksanaan Konstruksi
Selama fase konstruksi, pastikan untuk memantau progres secara berkala. Pastikan pekerjaan sesuai dengan rencana dan spesifikasi.
Inovasi dalam Konstruksi Gedung 4 Lantai
Gedung-gedung 4 lantai menghadapi sejumlah inovasi dalam teknologi konstruksi yang telah mengubah cara mereka dibangun. Inovasi-inovasi ini telah memungkinkan pengembangan gedung yang lebih efisien dan berkelanjutan. Beberapa inovasi terkait konstruksi gedung 4 lantai adalah sebagai berikut:
- Prefabrikasi
Teknik prefabrikasi memungkinkan berbagai elemen struktural seperti dinding, balok, dan kolom dibangun di pabrik dan kemudian dipasang di lokasi konstruksi. Ini menghemat waktu dan biaya konstruksi serta mengurangi limbah konstruksi.
- Bahan Ramah Lingkungan
Penggunaan bahan ramah lingkungan seperti beton daur ulang, kayu yang dikelola dengan baik, dan material isolasi berkinerja tinggi telah menjadi prioritas dalam konstruksi gedung 4 lantai yang berkelanjutan.
- Pemanfaatan Energi Matahari
Penggunaan panel surya dan teknologi energi matahari lainnya telah menjadi lebih umum dalam gedung-gedung 4 lantai. Mereka membantu mengurangi konsumsi energi dan dampak lingkungan.
- Penggunaan Teknologi Bahan Bangunan Canggih
Material seperti beton serat yang kuat, kaca berenergi rendah, dan sistem ventilasi cerdas telah digunakan untuk meningkatkan kinerja bangunan dalam hal ketahanan, efisiensi energi, dan kenyamanan penghuni.
- Penggunaan Teknologi Bangunan Cerdas
Sistem otomatisasi bangunan cerdas seperti pengaturan suhu otomatis, pencahayaan yang dapat diatur, dan sistem keamanan pintar telah meningkatkan kenyamanan dan efisiensi penggunaan energi.
Keberlanjutan dalam Gedung 4 Lantai
Dalam era kesadaran lingkungan, gedung-gedung 4 lantai juga semakin mementingkan aspek keberlanjutan. Beberapa tindakan yang diambil untuk memastikan keberlanjutan gedung ini adalah:
- Pengelolaan Limbah Konstruksi
Pengelolaan limbah konstruksi yang baik adalah langkah penting untuk mengurangi dampak lingkungan. Daur ulang material konstruksi dan mengurangi limbah adalah praktik yang umum dalam pembangunan gedung 4 lantai.
- Penghematan Energi
Penggunaan teknologi hemat energi dan sistem manajemen energi telah membantu mengurangi konsumsi energi gedung-gedung ini. Ini termasuk pencahayaan hemat energi, isolasi yang baik, dan peralatan energi rendah.
- Kualitas Udara Dalam Ruangan yang Baik
Penting untuk memastikan bahwa gedung-gedung 4 lantai memiliki sistem ventilasi yang baik dan mempertimbangkan kualitas udara dalam ruangan. Ini dapat menciptakan lingkungan yang lebih sehat bagi penghuninya.
- Penggunaan Material Berkelanjutan
Memilih material bangunan yang berkelanjutan, seperti kayu bersertifikat FSC (Forest Stewardship Council) atau bahan daur ulang, adalah langkah penting dalam mencapai keberlanjutan.
Perawatan dan Pemeliharaan Gedung 4 Lantai
Setelah gedung 4 lantai selesai dibangun, perawatan dan pemeliharaan yang baik adalah kunci untuk memastikan kelangsungan dan keindahan gedung. Beberapa aspek perawatan yang perlu diperhatikan adalah:
Perawatan Rutin: Lakukan perawatan rutin untuk menjaga gedung dalam kondisi terbaik. Ini mencakup perawatan bangunan, perawatan taman, dan peralatan dalam gedung.
Perawatan Material: Beberapa material dalam gedung mungkin memerlukan perawatan khusus. Pastikan untuk mengikuti panduan perawatan dari produsen.
Pemeliharaan Sistem: Sistem seperti HVAC (Ventilasi, Pemanas, dan Pendingin), sistem keamanan, dan sistem energi matahari perlu diperiksa dan dirawat secara teratur.
Keamanan Gedung: Pastikan bahwa sistem keamanan seperti alarm kebakaran, sistem pemadaman kebakaran, dan sistem keamanan bangunan berfungsi dengan baik.
Gedung-gedung 4 lantai adalah tonggak penting dalam perkembangan arsitektur modern. Mereka mencerminkan inovasi dalam konstruksi, desain, dan keberlanjutan.
Dengan fondasi yang kuat, inovasi dalam teknologi konstruksi, dan perawatan yang baik, gedung-gedung ini adalah bukti kemajuan arsitektur yang mengejar visi akan ruang yang lebih efisien dan berkelanjutan dalam perkotaan yang terus berkembang.
Membangun dan merawat gedung 4 lantai adalah tantangan yang memuaskan yang memungkinkan kita untuk menghargai keindahan dan inovasi dalam arsitektur modern.
Gedung-gedung ini adalah lebih dari sekadar bangunan, mereka adalah wujud dari gagasan dan visi tentang masa depan yang lebih berkelanjutan. Dengan fondasi yang kuat, inovasi desain, dan perawatan yang baik, gedung-gedung 4 lantai terus menjadi pionir dalam kemajuan arsitektur modern.
Rizan Aji Anggara adalah seorang arsitek yang bekerja di Dinaka Struktur, sebuah firma yang dikenal dalam bidang desain struktur bangunan. Di Dinaka Struktur, Rizan berperan penting dalam memastikan setiap proyek memenuhi standar keselamatan dan kualitas yang tinggi

































































































